15.9

Продажа двухэтажного дома в Армавире

Категория
Недвижимость
Дата размещения 27.02.2026 20:31
Местоположение Россия, Армавир
Контактная информация
+79628775229
Пожаловаться на объявление

Описание

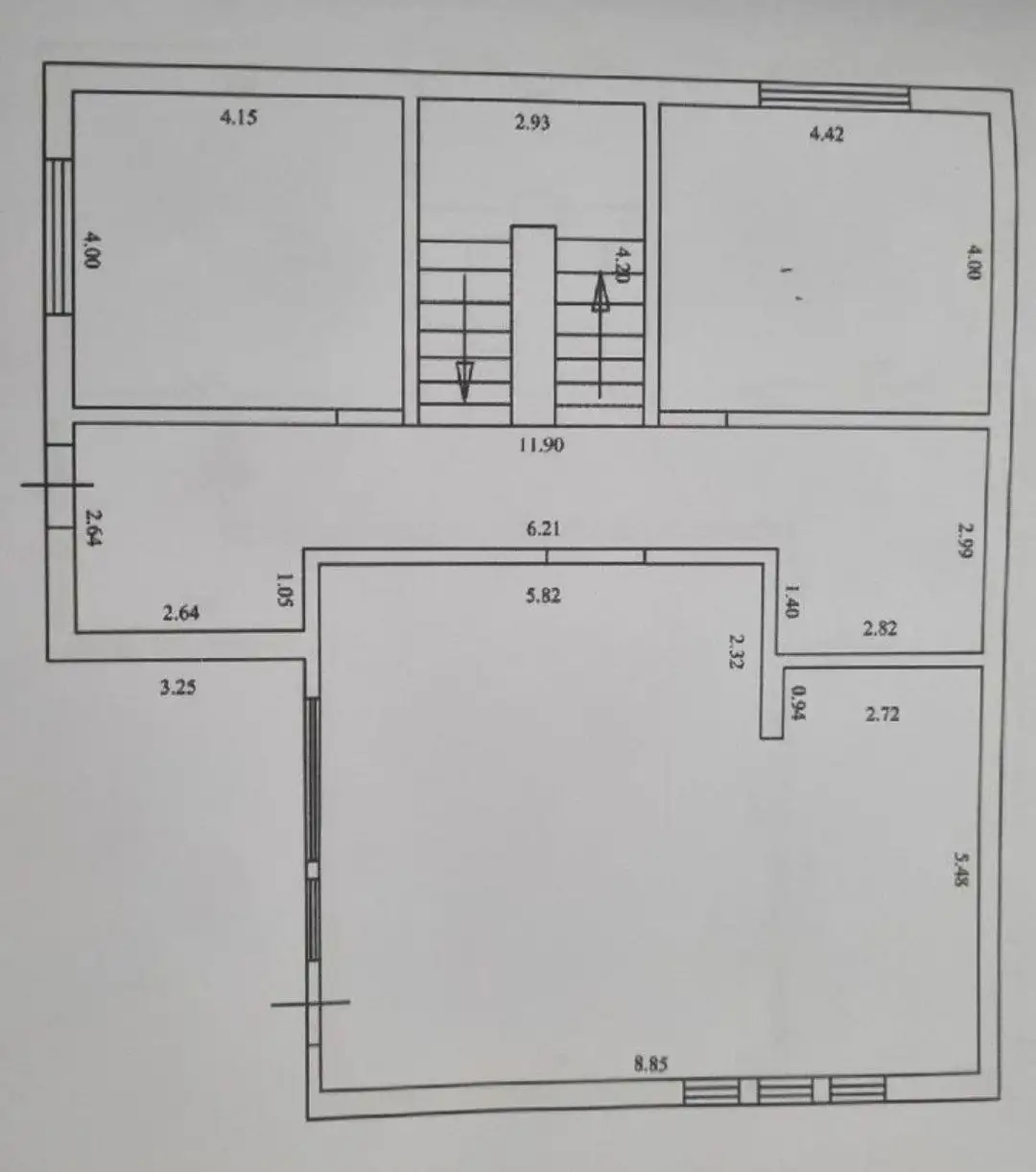
Продается новый двухэтажный дом в современном стиле. Общая площадь составляет 260 м2. Большая кухня-гостиная с витражными окнами, высота потолков 3.9м, выход на терассу. 4 изолированных спальни, 2 санузла, хамам, веранда на втором этаже, терраса. Чистовая отделка, теплый пол и теплые стены, все коммуникации. Большой участок 6,7 сот, что позволит обустроить на территории: бассейн, беседку, баню, парковку на несколько авто. Находится дом в прекрасном районе с развитой инфраструктурой и транспортной доступностью, рядом с тц "Красная площадь". Сдан в эксплуатацию, документы в порядке, один собственник, обременений и арестов нет.

Пожаловаться на объявление