44000000
Выше рыночной

Продажа коммерческого помещения в Волгограде

Категория
Недвижимость
Коммерческая недвижимость
Дата размещения 03.04.2026 14:02
Местоположение Россия, Волгоград
Контактная информация
+7-921-375-40-46
Пожаловаться на объявление

Описание

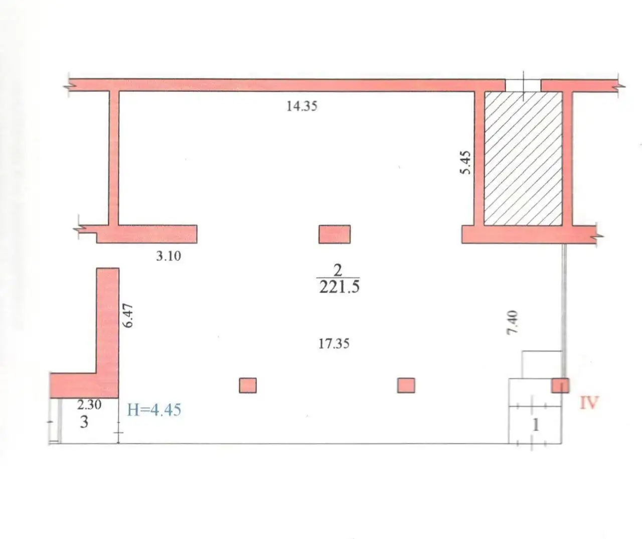
Продается помещение площадью 303,8 кв.м. на первом этаже в крупном жилом квартале с высокой плотностью населения. Высота потолков 4,45 м, мощность 30 кВт, 2 входа (1 с фасада, 1 со двора). Все договоры с ресурсоснабжающими организациями заключены напрямую с арендатором. Арендатор: «Магнит» (договор до апреля 2030 г.). Продавец: ООО на ОСН (22%). Комиссия партнерам: 1%.

Рекомендация Telegator по цене

Сравнил с аналогичными предложениями коммерческой недвижимости в Волгограде с арендатором-сетью. Рыночная стоимость ниже из-за региональных особенностей и сроков аренды.

Цена объявления: 44000000
Рыночная цена: 38000000

Пожаловаться на объявление