17000000
Выше рыночной

Продажа монолитного энергоэффективного дома в поселке на Симферопольском шоссе

Категория
Недвижимость
Дома
Дата размещения 25.02.2026 09:32
Местоположение Россия, Серпухов
Контактная информация
+79251181611
Пожаловаться на объявление

Описание

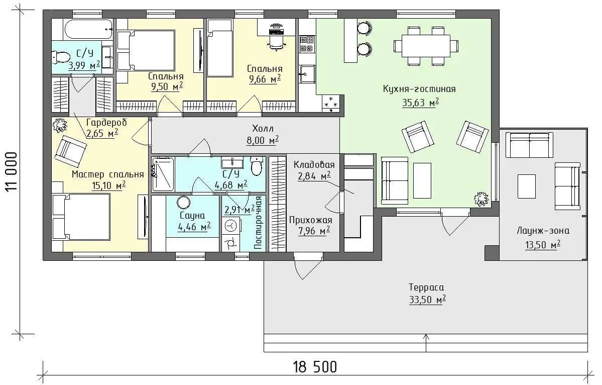
Монолитный энергоэффективный дом площадью 113 кв.м с новым ремонтом, мебелью и техникой. Участок 11,15 соток. Кухня-гостиная 35 кв.м, 3 спальни, 2 санузла, сауна, терраса. Закрытый камерный поселок, вокруг лес, грибы, ягоды, в пешей доступности озеро с рыбалкой, хорошее комьюнити. 3 км до жд станции, 6 км до г. Серпухов.

Рекомендация Telegator по цене

Сравнил с аналогичными предложениями домов в Серпуховском районе: средняя цена 12-16 млн за 100-120 кв.м на участках 10-15 соток с ремонтом.

Цена объявления: 17000000
Рыночная цена: 14500000

Пожаловаться на объявление