39844900

Готовый арендный бизнес в Калуге

Категория Готовый бизнес и оборудование
Дата размещения 26.12.2025 09:30
Местоположение Россия, Калуга
Контактная информация
@AlexandrKoginov
Написать в Telegram

Описание

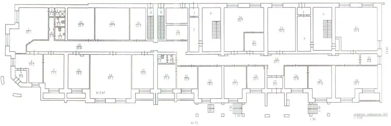
Готовый арендный бизнес с доходом с первого дня. Помещение 549,7 кв.м. Отопление индивидуальное. Два долгосрочных договора аренды. МАП и ГАП в 2026 году. Индексация 5%. Окупаемость с учётом индексации и прайса 8,83 года (11,3 годовых).